VP 231

Este projeto envolveu a transformação significativa de uma residência situada em um lote de esquina, que anteriormente excedia a taxa de ocupação permitida pela prefeitura. Nossa intervenção teve como objetivo adequar a edificação às normas vigentes, melhorar sua ventilação e insolação, sua funcionalidade e estética.

• Redução da Área Construída:

Diminuímos a área construída para atender às exigências legais, garantindo conformidade com a taxa de ocupação permitida.

• Alinhamento das Paredes: Corrigimos o desalinhamento existente, eliminando ângulos agudos e criando uma planta mais racional e eficiente.

• Reorganização dos Espaços Internos:
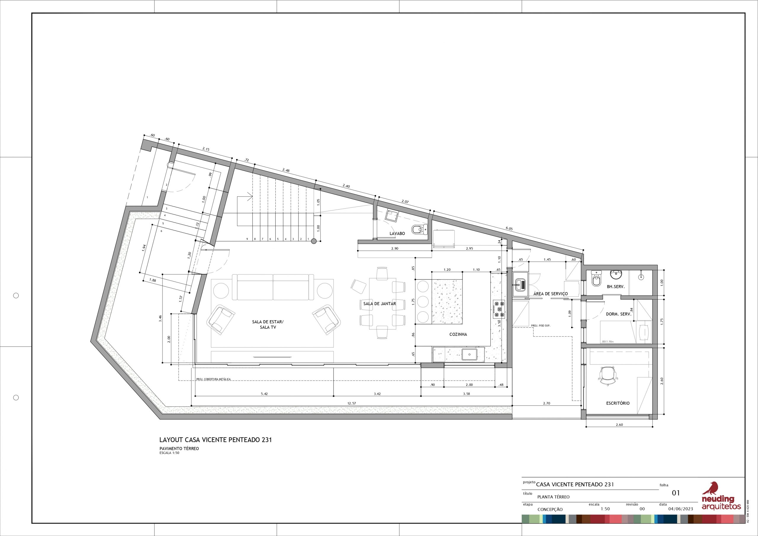
Pavimento Térreo: Integração dos espaços sociais, criação de um escritório e conexão funcional entre a lavanderia e a cozinha.
Pavimento Superior: Desenvolvimento de suítes para as três filhas e uma suíte master para o casal.
Ático: Implementação de uma suíte adicional, com potencial para uso como escritório.

Estudo das Aberturas e Fachada:

Durante a fase de estudo, exploramos diversas abordagens para as aberturas, consideramos soluções como estruturas em “exoesqueleto”, estruturas embutidas, caixilhos independentes para cada janela. 

Uma das propostas inclui uma passarela externa metálica com vegetação que une todos os caixilhos do piso ao teto, proporcionando um design mais contemporâneo nao deixando de ser aconchegante, e proporcionando mais privacidade aos quartos.

Este projeto exemplifica como a readequação de uma edificação pode resultar em um espaço mais funcional, esteticamente agradável e em conformidade com as regulamentações urbanísticas.

Localização

Jardim Paulistano SP

Área

350m²

Plantas