SC 77

Quando este casal chegou ao meu escritório, fiquei impressionada com o alinhamento que tinham entre si, além da organização e clareza que apresentavam.

Trouxeram uma lista de desejos dividida em três categorias: itens inegociáveis, itens negociáveis e itens que seriam realizados se possível.

Essa abordagem nos envolveu no desenvolvimento das soluções até chegarmos a 99% do sonho atingido!

Principais Características do Projeto:
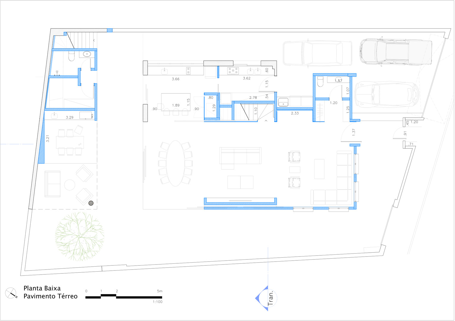
• Área Construída: 350 m²

• Suítes:

• Filhos: Duas suítes. 

• Casal: Suíte master com banhos separados:

• Banho Sra: Inclui uma pequena máquina de lavar lingerie.

• Banho Sr: Conta com uma sauna úmida integrada ao box.

• Área Comum: As três suítes principais se abrem para um family room com home theater e lareira.

• Ático: Funciona como escritório da proprietária e quarto de hóspedes, acomodando a avó das crianças quando ela vem se hospedar.

• Edícula: Abriga uma quinta suíte junto à sala de ginástica completa, que também serve como escritório do proprietário.

• Garagem: Projetada para três vagas confortáveis, com a opção de uma quarta, além de carregador para carro elétrico e espaço para as bicicletas.

• Cozinhas: A casa tem três cozinhas: a do chef (no caso, o proprietário), a de serviços e a churrasqueira externa no jardim.

• Arquitetura: Possui uma forma mais clássica e acolhedora, com venezianas azuis, tijolinho branco, uma porta vermelha na entrada e um telhado inclinado com telhas, elementos que refletem a identidade desejada pelos proprietários e se harmonizam com o bairro.

A colaboração estreita entre os clientes e nossa equipe de arquitetura foi fundamental para o sucesso deste projeto. 

A clareza nas expectativas e a organização dos proprietários permitiram a criação de uma residência que não apenas atende às necessidades funcionais, mas também realiza seus sonhos pessoais.

Espero sinceramente ter a oportunidade de trabalhar com mais clientes como eles, cuja visão e planejamento contribuem para resultados tão gratificantes.

Localização

Jardim Paulista SP

Área construída

350 m²

Ano do Projeto

2024

Plantas