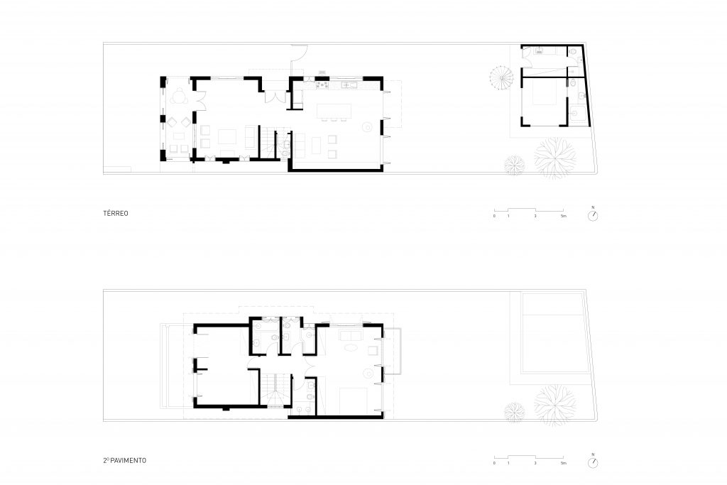
Casa Itapirapuã

A Casa Itapirapuã é uma obra que une harmonia, sofisticação e integração com o ambiente natural ao redor. Localizada em um terreno privilegiado, o projeto foi desenvolvido para maximizar a luz natural e as vistas deslumbrantes, ao mesmo tempo que mantém uma estética moderna e acolhedora.

Com espaços amplos, acabamentos de altíssimo padrão e um design que prioriza o conforto sem abrir mão da elegância, a Casa Itapirapuã é um refúgio perfeito, pensado para proporcionar uma experiência de vida única. 

Cada detalhe foi meticulosamente planejado para oferecer funcionalidade e estética, criando um ambiente perfeito para a convivência familiar e momentos de lazer.

Planta